Hi,
Would I be correct in saying the attached is a form of PNB?
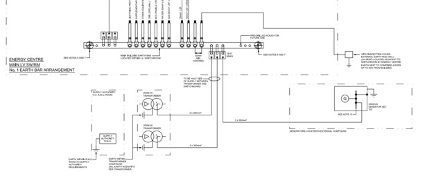
The transformers are private so for the purpose of EV charging equipment, we treat it as a TN-S?

Thank you in advance.
Hi,
Would I be correct in saying the attached is a form of PNB?
The transformers are private so for the purpose of EV charging equipment, we treat it as a TN-S?

Thank you in advance.
I think we have a misunderstanding here, and a rather bad drawing. this diagram is intended to show the Earthing arrangements only, however the neutral points of the transformers and generator would then have no connections for N-E bonding, so the neutrals have been included and detailed as half size on the drawing. The test links are the N-E bonds, and when the phase cables are added the drawing becomes clear. The drawing only deserves 3/10 for a poor effort! 3x300 mm to the bar and then a 50mm (BS7671) cable to the Earth rods is the give away. The supply is clearly TN-S!
I think we have a misunderstanding here, and a rather bad drawing. this diagram is intended to show the Earthing arrangements only, however the neutral points of the transformers and generator would then have no connections for N-E bonding, so the neutrals have been included and detailed as half size on the drawing. The test links are the N-E bonds, and when the phase cables are added the drawing becomes clear. The drawing only deserves 3/10 for a poor effort! 3x300 mm to the bar and then a 50mm (BS7671) cable to the Earth rods is the give away. The supply is clearly TN-S!
We're about to take you to the IET registration website. Don't worry though, you'll be sent straight back to the community after completing the registration.
Continue to the IET registration site